Monika Poethke, Dipl. Ing. Innenarchitektin Fon 07 31 . 9 21 71 17

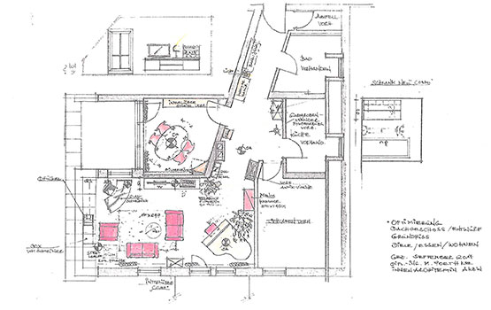
Optimierung für ein Dachgeschoss

Beschreibung

Ein Großteil der klassisch, modernen Möbel ist schon vorhanden.
Was der Bauherrin fehlt, ist die Zeit zur Optimierung – zeitlich sehr im Job engagiert und eingespannt. Sehr gerne sind wir hier hilfreich mit Rat und Tat dabei.


Zielsetzung

Konzept mit vorhandenen und neuen Möbeln als Optimierung. Erhaltung:

  • der Sitzgruppe
  • Kleinmöbel + Flügel
  • Schreibtisch, Vorhänge

Lösung

Neugruppierung der vorhanden Möbel.
Ergänzend neues Sideboard für die HIFI-Anlage und das TV-Gerät, sowie

  • Teppich
  • Beleuchtung
  • Farbgebung

Projektgliederung

Bauherrin wünscht, nach Möglichkeit, „Alles weg vom Boden“ und mehr Stauraum. Das Streichen der Räumlichkeiten mit einer neuen Akzentfarbe. Umstellen der Möbel bevor Neulieferung erfolgt.

Montage des neuen Sideboards und Garderobenschrankes. Esstisch kleiner und oval wählen.

Die Arbeiten sind inzwischen abgeschlossen und die Bauherrin äußert sich,
inklusive der eingeladenen Freunde, sehr zufrieden!

Die Diele

Flur-ist
Flur: Vorher
Flur: Nachher
Flur: Nachher

  • Sortierung des Mobiliars und der Garderobe. Der Kleiderständer hat einen neuen Platz erhalten und die Naturtöne sind, unterstützt von einem neuen Bild an der Wand, in Einklang gebracht worden.
  • Einfügen einer zusätzlichen Lichtquelle – die Diele wirkt größer und weitläufiger.

    • Neuer Platz des Kleiderständers
    • Betont neu gestrichene Wand mit Passepartout in der Trendfarbe Rosa
    • Zusätzlicher Stauraum

    Integrieren des vorhandenen Schrankes

    Der Wohnraum

    Maßgabe:»Alles weg vom Boden«

    Wohnen-ist
    Vorher

    Nachher
    TV-Gerät und Musik-Anlage auf wandhängendem Sideboard

    Eine zufriedene Kundin bedankte sich zum Abschluss der Arbeiten mit einem Blumenstrauß!

    Nachher

    Nutzung der Dachschräge für den Schreibplatz
    Neubezug der vorhandenen Sitzmöbel

    Wiederholung des Passepartouts an der Wand mit Dachschräge

    Back to top